top

Universidade do Minhofechar ×

2025

Concurso

 
 

Ficha técnica

Ano: 2025

Área do edifício: 2328,00m²

Arquitetura:
SIAA + Arquiponto
Cesar Shundi Iwamizu
Bruno Valdetaro Salvador
Marco Pimparel

Colaboradores SIAA:
André Ferreira
Gustavo Bunese
Nathalia Pardo
Lucas Rosa (estudante)

Colaborador Arquiponto:
Rui Gonçalo Vieira Figueiredo Dias

Universidade do Minho
Braga
Portugal

Concurso de concepção para elaboração do projeto de reabilitação do edifício do castelo.

Projeto projeto premiado com o 3º lugar!

Memorial Descritivo do Projeto

  1. Conceito Geral

    1. Construir no construído

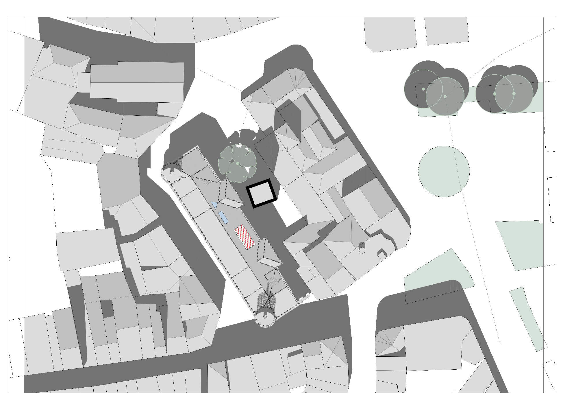
Quando nos deparamos com o desafio de projetar algo novo num edifício de importância histórica e cultural como o “Edifício do Castelo” – local das antigas muralhas de Braga, obra referência do arquiteto Marques da Silva e marco significativo da área central da cidade –, não só é importante pensar no cuidado e delicadeza da intervenção, mas também na sua pertinência: nem descaracterizar a edificação e a sua memória, nem abdicar de construir o futuro a partir das ações do presente.

Para manter vivo o patrimônio arquitetônico e cultural e, portanto, os seus valores históricos, estéticos e simbólicos, devemos utilizá-los cotidianamente. Neste caso parece-nos perfeitamente possível e oportuno, tanto por respeitar as características originais exteriores do patrimônio, como por adaptar o seu interior às novas exigências funcionais e contemporâneas da Universidade de Minho.

Pensar no edifício e modernizar os seus usos, ainda que sem intervir direta e significativamente nas suas fachadas, é reafirmar e ampliar a relação do objeto com a sua importante envoltória, tanto quanto fortalecer a relação entre a Universidade e a sociedade.

  1. A demolição interior como primeira ação

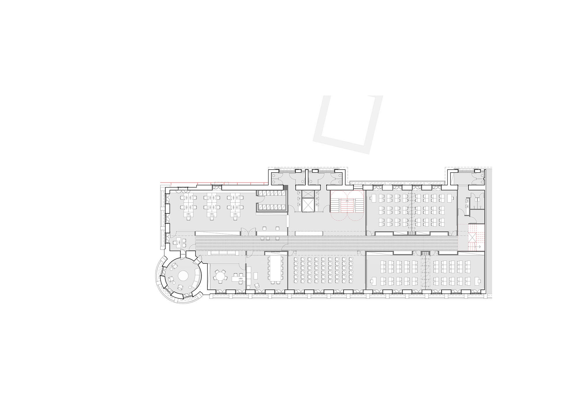
Após a leitura do espaço e dos conceitos de intervenção, bem como os primeiros esboços para a disposição do programa de administração e aulas da Universidade no edificado, notamos a excessiva fragmentação dos espaços atuais existentes, impedindo a organização do programa e das suas necessidades, bem como a desejável continuidade espacial destinada ao uso universitário.

O atendimento a este novo programa de necessidades só foi possível após vislumbrarmos a demolição de parte das estruturas internas –  ação possível graças a reforços estruturais, nos pavimentos internos, de madeira e aço – seguidos do restauro dos seus elementos arquitetônicos, como janelas, portas, guarda-corpos e ornamentos externos.

Colocada como primeira condição, a demolição das divisões interiores permitiu a reconfiguração dos espaços, criando ambientes mais amplos, flexíveis e adequados às funções contemporâneas, sem comprometer a integridade estrutural e estética da construção.

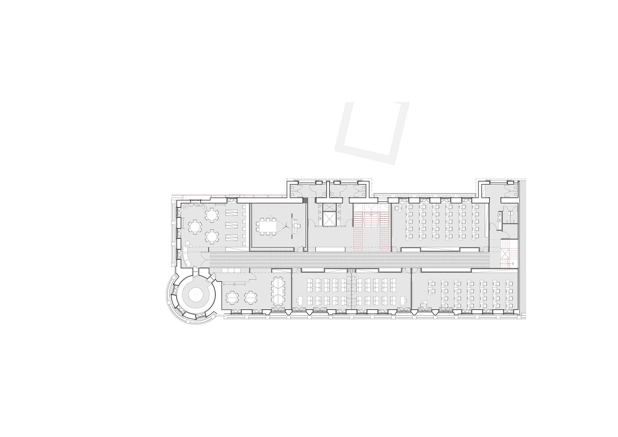
Reprojetar a escada

A leitura atenta das infraestruturas do edifício, bem como as suas conexões verticais e horizontais internas, possibilitaram a manutenção do posicionamento da escada do projeto original do edifício, elemento central na distribuição do público pelos diversos pisos.

No entanto, ao invés de preservar a escada não original e o elevador de betão armado, decidimos reprojetar a conexão vertical de modo a garantir maior conforto, segurança e amplitude visual entre os diversos pisos.

A estrutura metálica proposta foi concebida para obter a menor dimensão possível em planta, criando patamares intermediários a cada piso e uma ampliação da largura dos lances de escada, de modo a permitir o dobro de capacidade de circulação em termos de unidades de passagem.

Ao lado, junto aos acessos das instalações sanitárias principais, um novo elevador com frente envidraçada atravessa verticalmente o edifício, permitindo que a luz zenital percorra todos os pisos – aqui, dada a presença visível da maquinaria intrínseca ao elevador, fica reforçada a relação de contraste entre o passado e o presente.

Complementando o sistema de circulações, foram previstas escadas pontuais nas extremidades do edifício, sendo a primeira entre o auditório e seu mezanino, e a segunda entre os pisos dedicados ao programa da Universidade. Em ambas as situações, criam-se circulações complementares para facilitar o uso cotidiano, como atalhos oportunos para a conexão direta entre os vários pisos.

  1. Funcionalidade e Articulação

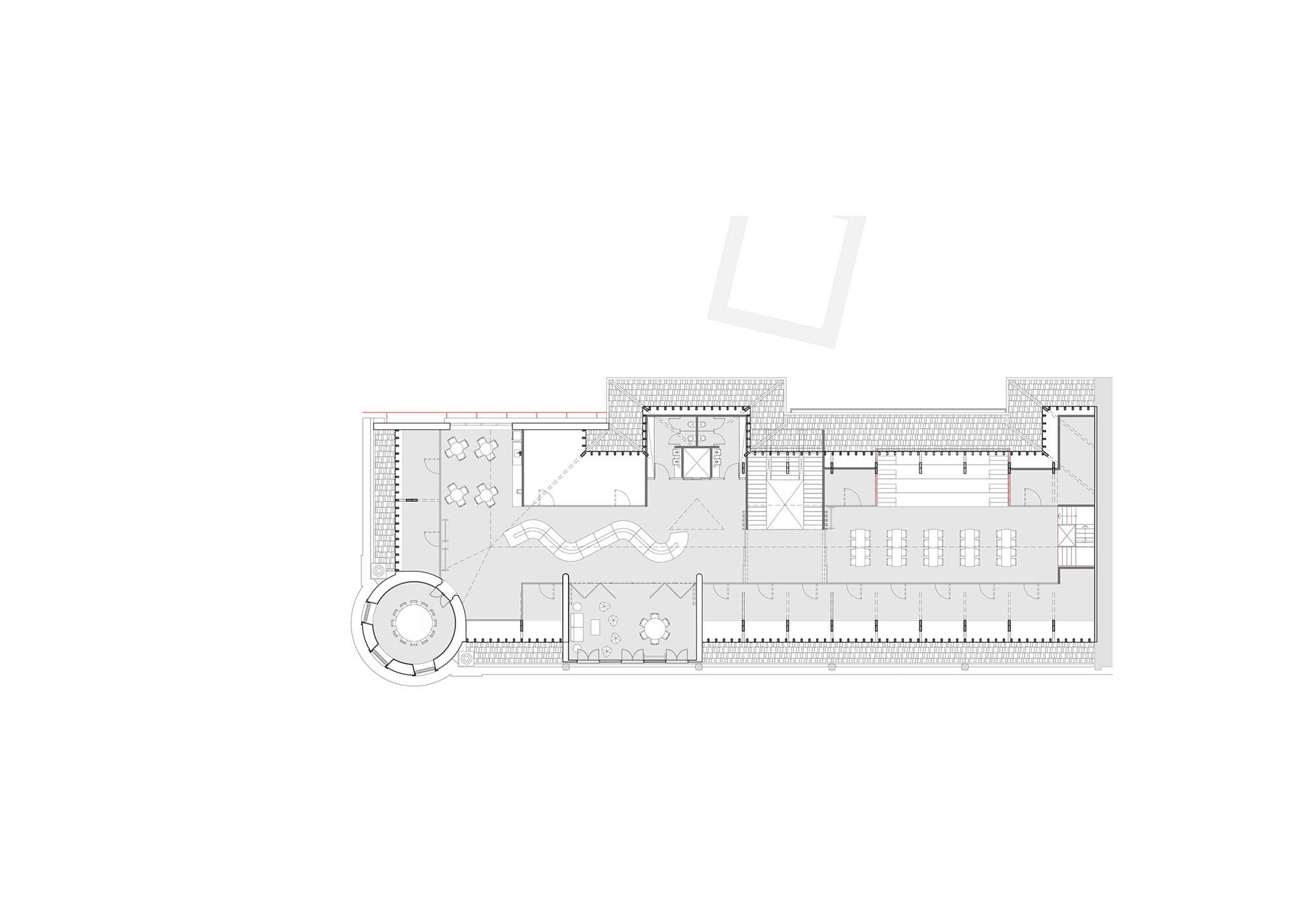
    1. O caráter público do térreo

Em continuidade às arcadas originais e ao átrio que atravessa o edifício no piso térreo, decidimos criar um elemento versátil que desenha o espaço de recepção pública da Universidade e organiza o piso térreo, encaminhando-nos até o auditório.

Muito distante de um auditório convencional, imaginamos este espaço com flexibilidade, capaz de ser organizado em diferentes arranjos funcionais como por exemplo, uma sala plana, um espaço expositivo, ou outra qualquer utilidade que a Universidade necessite.

Um mezanino complementa a capacidade de lugares e manifesta-se mediante expressivas linhas diagonais, contrapondo-se à rigidez ortogonal da construção existente, não só pela sua geometria, mas também pela materialidade das estruturas e elementos metálicos, muito distintos das alvenarias de pedra, agora concebidas sem revestimentos, expondo a sua natureza tectônica.

  1. Uma Escola dentro do Castelo

Nos níveis acima do piso térreo e do mezanino, a distribuição do programa faz-se a partir da marcação de um eixo longitudinal, servindo tanto de espaço de circulação horizontal como de espinha infraestrutural para todos os espaços e ambientes da Universidade em pleno funcionamento técnico.

Em todos estes pisos – frente à escada, elevador e instalações sanitárias – foi criado um espaço vazio desenhado como lugar de chegada e encontro – o espaço de convivência – apropriado ao movimento e circulação dos alunos, antecedendo espaços de aulas ou laboratórios.

Justamente em frente a este ambiente aberto e de uso coletivo, no primeiro pavimento decidimos valorizar a Sala de Aula. Um espaço de caráter simbólico que pode ter as suas atividades expostas, ou não, por meio das divisões de vidro e cortinas, conforme a necessidade de cada ocasião.

Reforçando o ideal de convivência cotidiana, as divisórias entre corredores e salas são definidas por módulos posicionados longitudinalmente ao longo do edifício, desenhados ora como bancos voltados para a circulação, ora como armários no interior das salas. Entre cheios e vazios, estes volumes que definem corredores, intercalados por panos de vidro, propiciam a diversidade espacial, a transparência e a iluminação em relação aos ambientes laterais.

Tal solução está vincula a uma visão infraestrutural, uma vez que o corredor e seu teto rebaixado funciona também como eixo de distribuição de sistemas de energia, dados, climatização e automação, visão que garante flexibilidade ao edifício escolar, no sentido de amparar as inevitáveis adaptações que surgirão no futuro.

  1. Ocupar as coberturas

No último pavimento, junto ao telhado, propõe-se a eliminação das paredes que fragmentam esse espaço, permitindo a criação de um salão destinado a usos diversos: espaços de estar e descanso, copa para uso diário, mobiliário adequado a pequenos ou médios grupos de estudo e sempre iluminados naturalmente por janelas ou clarabóias.

Painéis fecham lateralmente o piso e ocultam as portas de acesso aos vestiários e áreas técnicas, exceção feita aos setores laterais viabilizados pelo pé direito adequado, possíveis pela disposição geométrica das suas coberturas.

Analogamente às mansardas já existentes na cobertura, propõem-se, junto ao espaço de vivência, uma nova intervenção não só capaz de ampliar o espaço de estar por meio de uma arquibancada, como permitir a vista privilegiada para a Torre de Menagem em primeiro plano e a vista da cidade como um todo, ao fundo.

  1. Volumetria exterior

De modo geral, a proposta considera o restauro das fachadas, incluindo o restabelecimento dos elementos construtivos que compõem a volumetria original. Única exceção ao procedimento de conservação que diz respeito à nova mansarda capaz de garantir iluminação natural e vislumbre sobre a Torre de Menagem.

O desenho angular deste novo elemento, não visível a partir das principais ruas do entorno, traz a mesma condição material dos elementos metálicos que acontecem no interior do edifício, dando unidade e clareza das modificações contemporâneas previstas nesta proposta.

Analogamente, a fachada lateral voltada ao Largo do Castelo – exatamente sobre o “Bar da Torre” – considera um fechamento em chapa metálica perfurada capaz de arrematar a fachada inacabada, excluindo a desconformidade estética desta torre, mas, ampliando, também, a sua utilidade para instalações artísticas de caráter efémero.

  1. Sustentabilidade e Eficiência Energética e Infraestrutural

    1.  Contribuição para a transição climática e / ou digital

Correspondendo a Transição Climática e Digital, as duas metas de relevante importância estratégica para a Europa, e Portugal em particular, torna-se vital aderir a iniciativas abrangentes através das quais seja possível tornar a Europa o primeiro continente neutro em carbono até 2050.

Atendendo à urgência de uma mudança para práticas mais sustentáveis e resilientes para uma eficaz Transição Climática e Digital, esta proposta de intervenção para a Universidade do Minho, alavancada na ampla experiência obtida na prática de transmissão de ensino superior desta instituição, contribuirá para uma Transição Climática (TC) e Digital (TD) mediante a implementação proativa de metodologias e tecnologias (inevitavelmente) eco sustentáveis:

Por um lado, promovendo a construção e manutenção das instalações com materiais, sistemas e soluções o mais sustentáveis possíveis, incorporando conceitos “green design” e implementando soluções energeticamente eficientes com o intuito de reduzir significativamente os consumos energéticos diretos e indiretos associados à materialização da obra e o consumo de energias com origem fóssil na vida útil do edifício. Opta-se, por exemplo, desde a sua construção até à manutenção, por serviços com certificação LEED (Leadership in Energy and Environmental Design); promovendo o uso de luz e ventilação natural ao invés de soluções mecânicas, reduzindo a dependência de sistemas de climatização; adota-se, também, práticas sustentáveis e abrangentes de gestão de resíduos, incluindo a reciclagem de materiais, a redução do desperdício e o uso de métodos eco-eficientes para a sua eliminação; encoraja-se a utilização de transportes sustentáveis especialmente por parte dos alunos; promove-se práticas de consumo sustentável, reduzindo ao máximo a pegada de carbono associada à produção, embalagem e distribuição de produtos; promovendo, sensibilizando e formando os diferentes usuários para práticas sustentáveis, de modo que a Universidade de Minho se sinta preparada para lidar com os impactos das mudanças climáticas, como eventos climáticos extremos.

Por outro lado, propõe-se investir em soluções digitalmente inovadoras, com o intuído de reduzir a pegada ecológica, implementando sistemas eficientes de registo, armazenagem e gestão de informação, melhorando a própria gestão ambiental do edifício, bem como a acessibilidade, a precisão e coordenação dos sistemas de ensino; introduzindo serviços remotos de “tele-gestão” e “tele-ensino” que permitam o fornecimento de transmissão e partilha de conhecimento de modo virtual, monitorizando Infraestruturas e Licenciaturas à distancia; maximizando a utilização tecnologias de IA (Inteligência Artificial) para analisar grandes conjuntos de dados de alunos, identificar padrões, prever tendências e otimizar os planos de ensino; incorporando dispositivos IoT (Internet of things) para monitorizar, gerir e fornecer dados acadêmicos, permitindo uma abordagem mais proativa ao ensino universitário; desenvolvendo APP´s móveis que permitam aos alunos e docentes ceder e monitorar suas informações acadêmicas e pessoais; investindo em infraestruturas robustas de ciber-segurança para proteção de dados e sistemas; implementando sistemas de automatização para otimizar processos de gestão e administração, melhorando a eficiência operacional e o desperdício; investindo na educação digital, através da promoção de ações de formação contínua para os profissionais, capacitando-os a utilizar, de modo eficaz, as tecnologias digitais e a se manterem atualizados nas últimas inovações tecnológicas.

Pela implementação destas ações e práticas, esta instituição pode desempenhar um papel significativo na transição para um modelo mais sustentável e resiliente, contribuindo para a preservação do meio ambiente e o bem-estar da comunidade; bem como melhorar a eficiência, a qualidade do ensino e a experiência do aluno, ao mesmo tempo que promove uma abordagem mais inovadora e sustentável para os desafios da humanidade.

 

  1. Respeito pelo princípio do DNSH (Do No Significant Harm), não apoiar ou realizar atividades econômicas que causem danos significativos a qualquer objetivo ambiental.

A reabilitação deste edifício, foi concebida de modo a cumprir as diretrizes globais em matéria de eficiência energética, preservando o princípio de “não prejudicar significativamente”, não negligenciando práticas que possam comprometer impactos significativamente positivos no meio ambiente e, por conseguinte, na saúde pública.

Apesar da complexa relação simbiótica entre as intenções programáticas e as limitações físicas do edificado existente, a sua transformação e adaptação deverá atender a requisitos rigorosos de eficiência energética pela concepção de soluções que atendam a tecnologias e práticas que minimizem o consumo energético e promovam a sua sustentabilidade, sendo que o objetivo é alcançar uma redução de pelo menos 20% nas necessidades de energia primária, conforme requisito NZEB (Nearly Zero-Energy Building). Para efeito, serão implementadas todas as soluções possíveis, que contribuam para utilização de energias alternativas, que correspondam a soluções técnicas altamente eficientes, que reduzam o consumo de água e energia elétrica, que permitam a utilização de luz e ventilação natural, e que na sua correlação, seja feita uma Gestão Técnica Centralizada, a fim de contribuir na redução do impacto negativo do edifício no meio ambiente e na saúde humana, através de um modo economicamente viável.

Sobre esta ambição propõe-se assegurar requisitos relativos à “economia circular” desde a sua concepção até à sua materialização e manutenção, adotando práticas que visam a minimização de resíduos, a reutilização de materiais e a promoção de um ciclo de vida sustentável para a estrutura construída, mediante estratégias que garantam a integração de soluções que diminuam o desperdício e maximizem a eficiência do uso de recursos. Desse modo, contribui desde o conceito até à execução da obra, com medidas e princípios sustentáveis de produção e consumo, de modo a amplificar a sua implementação por parte de todos os usuários. A partir de uma ponderação prévia do impacto ambiental das soluções propostas, em conjunto com as limitações técnicas do objeto proposto, serão identificadas oportunidades que conduzam a uma estratégia de intervenção menos nociva para o ambiente. Soluções essas que passarão por um planejamento que preveja o aumento da utilização de materiais reciclados e/ou reutilizados, tanto quanto possível, promovendo, por exemplo: estratégias de desconstrução ao invés de demolição, de modo a permitir a sua reutilização, e no presente caso, soluções de reabilitação com recurso a elementos/conjuntos pré fabricados, promovendo a construção sustentável.

Numa estratégia de reabilitação do edificado existente, bem como na sua manutenção prevista, serão excluídos todo ou qualquer material que contenha, na parte ou no todo, da sua composição, substâncias perigosas e não autorizadas, no âmbito do REACH, sob prejuízo de contaminação dos espaços e do meio ambiente.

Também numa estratégia de intervenção segura e sustentável, a seleção de materiais e sistemas construtivos deverá ser feita em consciência da sua baixa emissividade de níveis VOCs (Volatile Organic Compounds). Para isso, é importante que as diferentes soluções sejam certificadas e cumpridas de acordo com a norma aplicável, ou com certificação LEED.

 

  1. SÍNTESE CONCEITUAL

A proposta procura a preservação do patrimônio a partir da inserção de elementos contemporâneos capazes de abrigar uma universidade contemporânea, funcional e acessível. Cada decisão foi guiada pelo respeito à história do lugar e do objeto, simultaneamente, pela busca de soluções inovadoras que garantam a longevidade, a flexibilidade e a utilização do espaço. Como resultado, imaginamos uma intervenção capaz de valorizar o passado neste presente, ao mesmo tempo em que se lança ao futuro no fértil diálogo entre memória e contemporaneidade.