top
Habitação Multifamiliar em Chavesfechar ×
2024
Estudo Preliminar
Estudo Preliminar, Modelo físico
Estudo Preliminar, Modelo físico
2023
Estudo Preliminar
![]()
Ficha técnica
Arquitetura:
SIAA
Cesar Shundi Iwamizu
Bruno Salvador
Kelly Yokoyama
Victor Quio
Estudantes:
Anna Tereza Lanzuolo
Rafael Trigo
Leonardo Pina
Patricia Braga
Maquete física:
Leonardo Pina
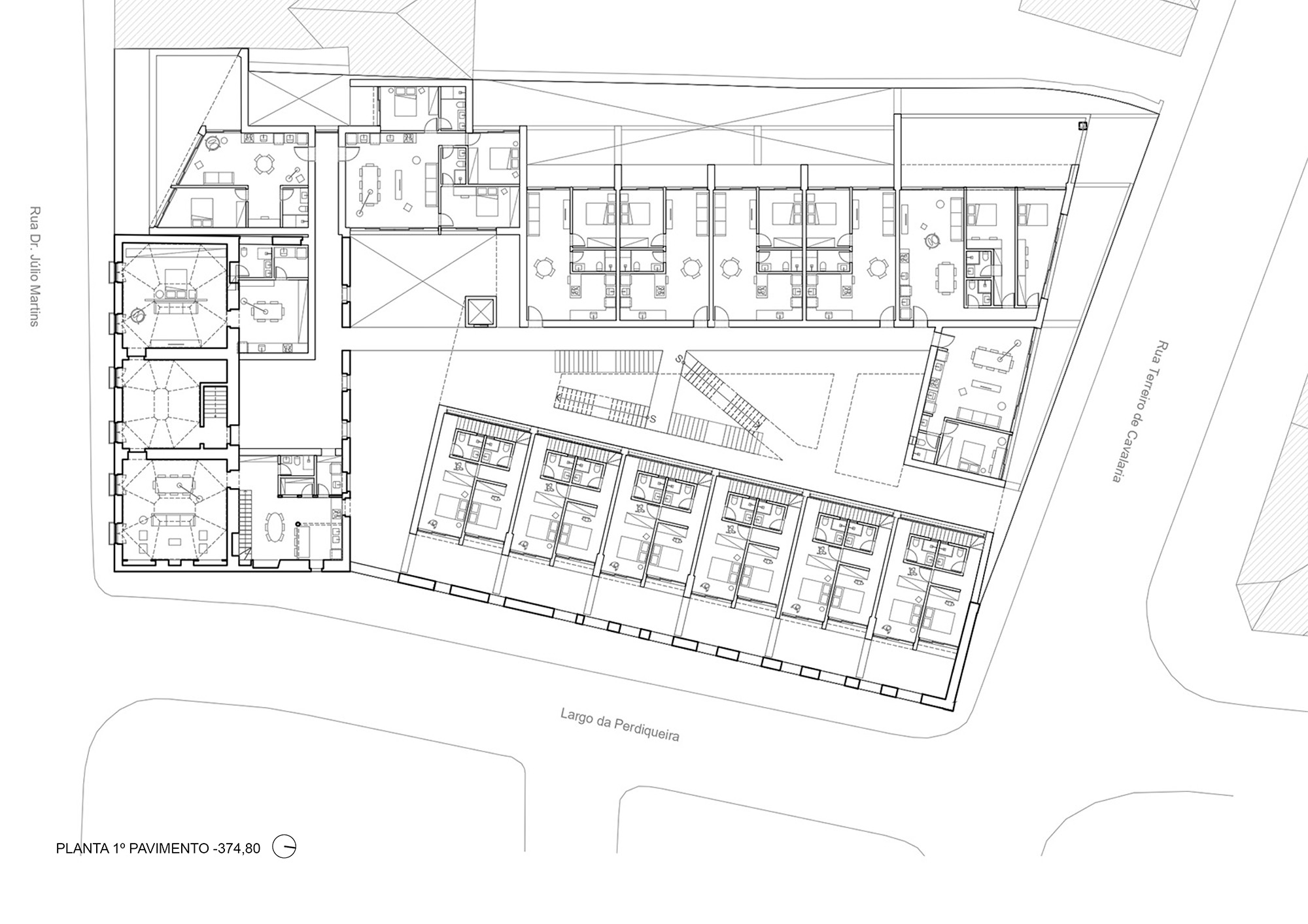
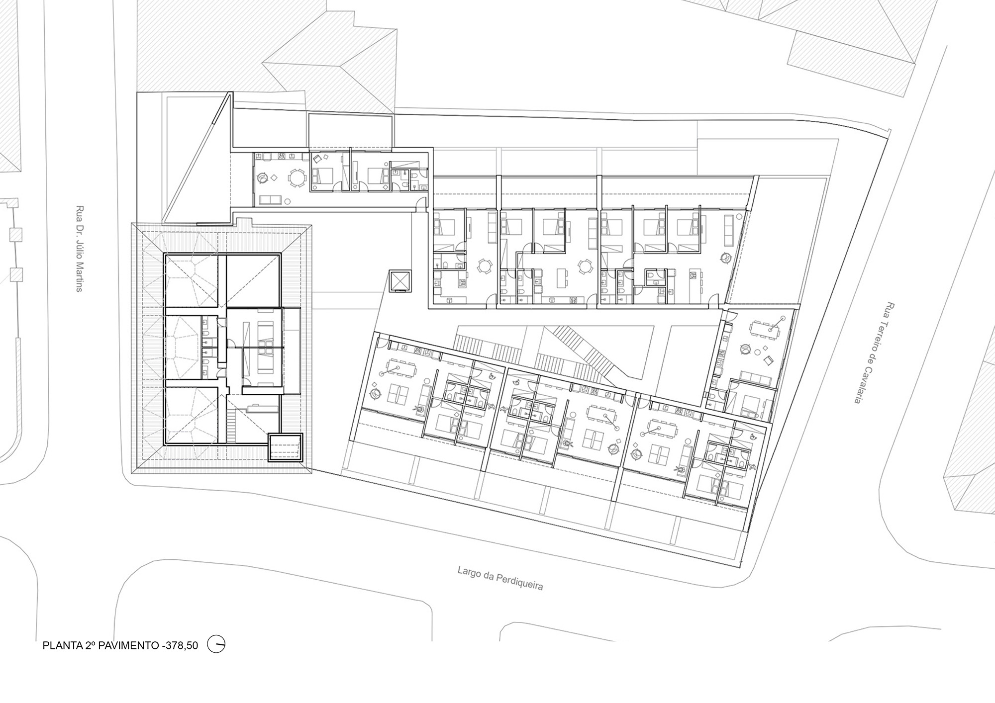
Habitação Multifamiliar em Chaves: Estudo Preliminar 1
Portugal
Portugal