top

Concurso Sesc Galeriafechar ×

2025

Concurso

 
 

Ficha técnica

Ano: 2025

Arquitetura:
Consórcio SIAA Apiacás

Responsável Técnico:
Cesar Shundi Iwamizu

Coautores:
Anderson Freitas
Beatriz Sonnenhohl
Beatriz Bitencourt
Bianca Juliasz
Bruno Salvador
Julia Ota
Marcelo Marçal
Pedro Barros
Stefanny Oliveira

Estudante:
Lucas Rosa

Consultores:
Instalações Elétricas e Hidrosanitárias: Daniel Morgado
Consultor Técnico-Legal: Fernando Martinez
Consultora de Paisagismo: Patrícia Akinaga
Orçamentação: Raoni Nakamura
Climatização: Roberto Hattori
Incêndio: Silmar Sendin

Concurso Sesc Galeria
São Paulo, SP, Brasil

Projeto com Menção Honrosa!

 

“A felicidade de um povo se mede pela beleza de suas cidades.”Vilanova Artigas

A transformação do antigo edifício das Lojas Mappin — marco referencial do centro de São Paulo e obra representativa de Elisário Bahiana — em uma nova unidade do SESC demonstra como a arquitetura pode melhorar nossos espaços urbanos. O projeto será exemplar na preservação da memória da cidade e, simultaneamente, abrigará novas funções capazes de promover a necessária inclusão social em nossa área central.

Diferentemente de Claude Lévi-Strauss em Tristes Trópicos, onde afirma: “No Brasil, tudo se transforma em ruína sem jamais ter sido uma construção”, a realização deste projeto nos dá a oportunidade de repensar: no SESC, as ruínas podem ser ressignificadas, transformando-se em belas arquiteturas. A instituição tem se mostrado capaz de dar nova vida a edifícios subutilizados, convertendo-os em espaços de convívio, cultura, educação, esporte, saúde e lazer, entre outros, além de alinhar-se a uma agenda ambiental urgente ao priorizar o uso de estruturas existentes em vez de processos repetitivos de demolição e reconstrução.

Permear: o chão no Centro de São Paulo
A proposta de se adotar o nome SESC GALERIA neste projeto nos indica o desejo da instituição de se valer de características presentes nos edifícios mais significativos de nossa área central: a possibilidade de atravessamentos urbanos através de seus pisos térreos.

Essa abertura reflete-se na proposta, tanto na manutenção das três entradas públicas do projeto original quanto na opção de ocupar esse piso como uma área de convivência, espaço aberto para exposições e loja — programas que podem sugestivamente se utilizar das antigas vitrines, potencializando o contato do edifício com os passeios públicos lindeiros.

Percolar: conectar os diferentes pisos
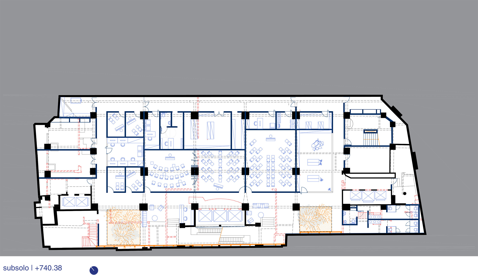
Analogamente às galerias do centro, a permeabilidade do piso térreo encontra continuidade vertical em seus diferentes níveis, percolação que, neste caso, acontece pela criação de novos vazios. Tal procedimento de supressão de lajes confirma-se como a primeira ação para viabilizar o projeto, recuperando a condição de iluminação e ventilação do projeto original, características perdidas posteriormente com a instalação das escadas rolantes.

Neste caso, em vez de retomar a solução original, incorporam-se as escadas mecanizadas como parte da história — até porque são adequadas à capacidade de fluxo dos usos públicos do SESC — e criam-se novos vazios laterais descobertos, iluminados, ventilados e contínuos desde o subsolo. Em uma inesperada inversão espacial, os fundos do edifício tornam-se novas fachadas interiores, junto ao fluxo de visitantes no acesso aos diferentes programas.

Circulações e Infraestrutura
Neste edifício de uso público e acentuada verticalidade, o tema das circulações, prumadas e infraestruturas assume um papel importante para viabilizar a diversidade programática do SESC, além das dificuldades inerentes à prevenção e proteção contra incêndios.

Aproveitamos as prumadas laterais de elevadores para circulações específicas — circulação técnica (suprimentos, lixo, manutenção) a leste e circulação para funcionários (administração, editora, CPF) a oeste. Ao centro, junto às escadas rolantes, os elevadores assumem uma função de uso público, agora envidraçados e com capacidade para conectar todos os pavimentos.
Para obter a mesma eficiência da escada de emergência construída na ala oeste, substituímos o tramo superior da escada leste, viabilizando sua continuidade como prumada, permitindo seu enclausuramento e garantindo atendimento às normas vigentes. Tal ação possibilita a reabertura das escadas do projeto original, tanto as do lado leste (bloco inferior) quanto as do lado oeste (bloco superior), proporcionando conexões rápidas entre pavimentos tanto nos programas públicos quanto no setor de escritórios.

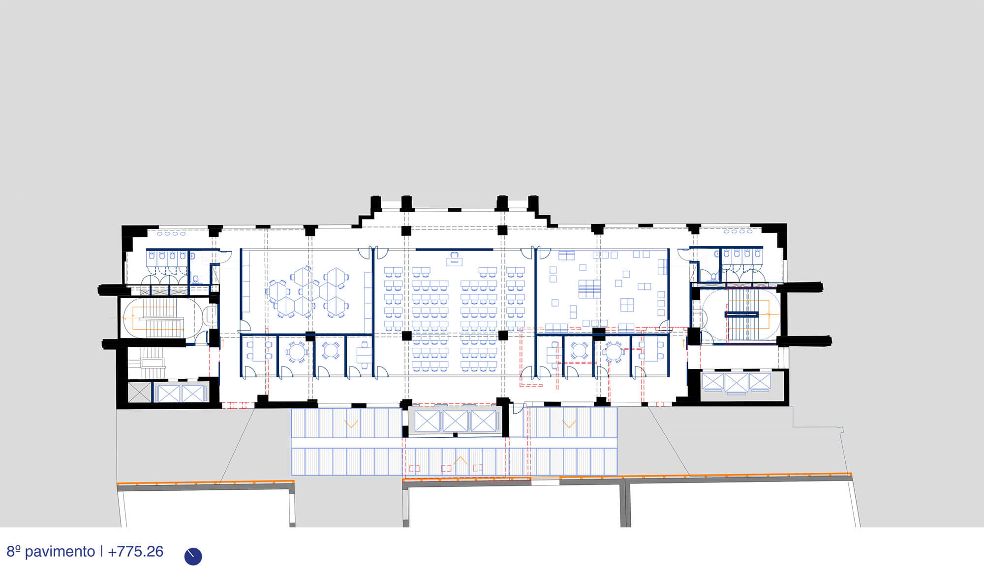
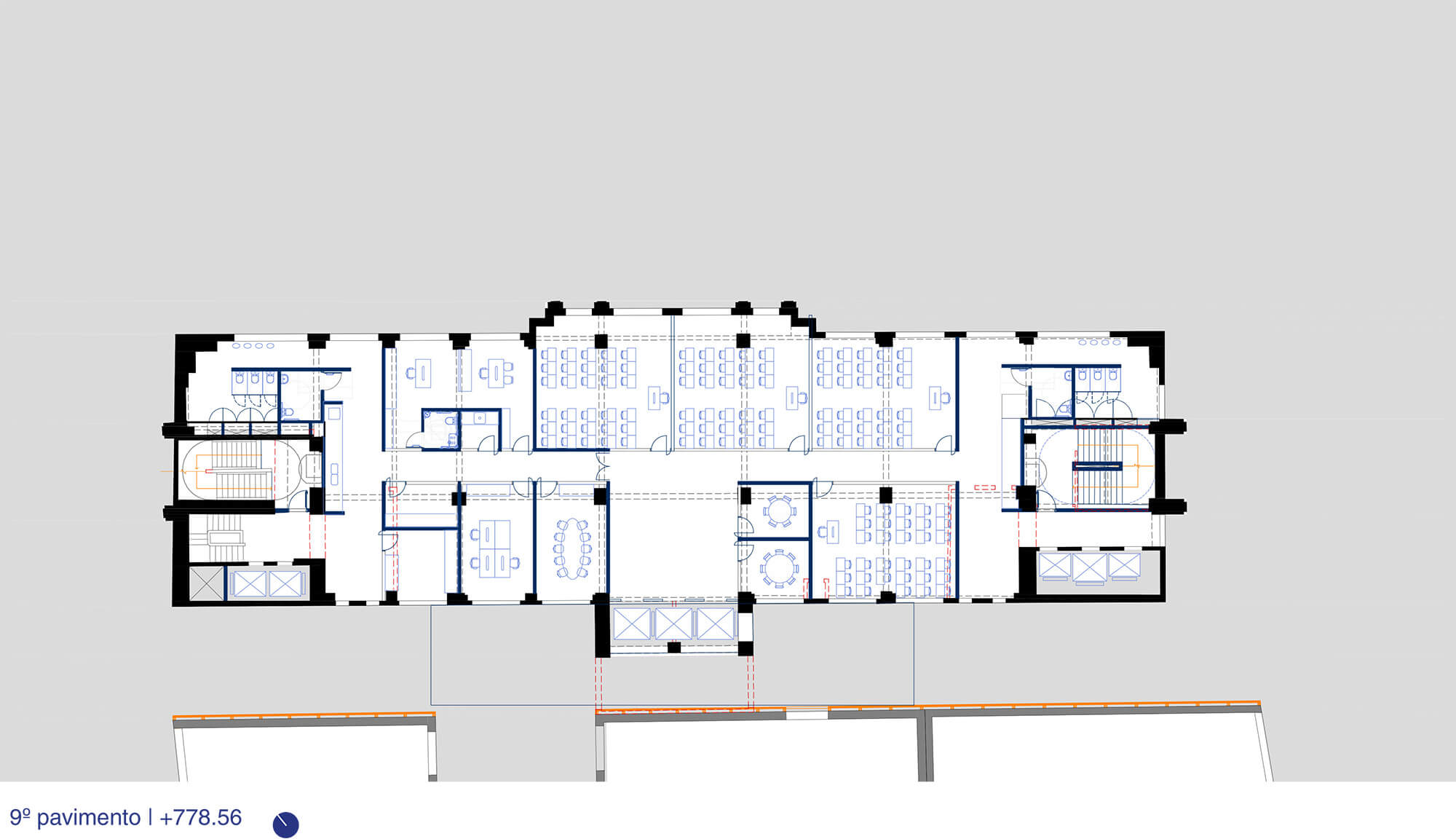
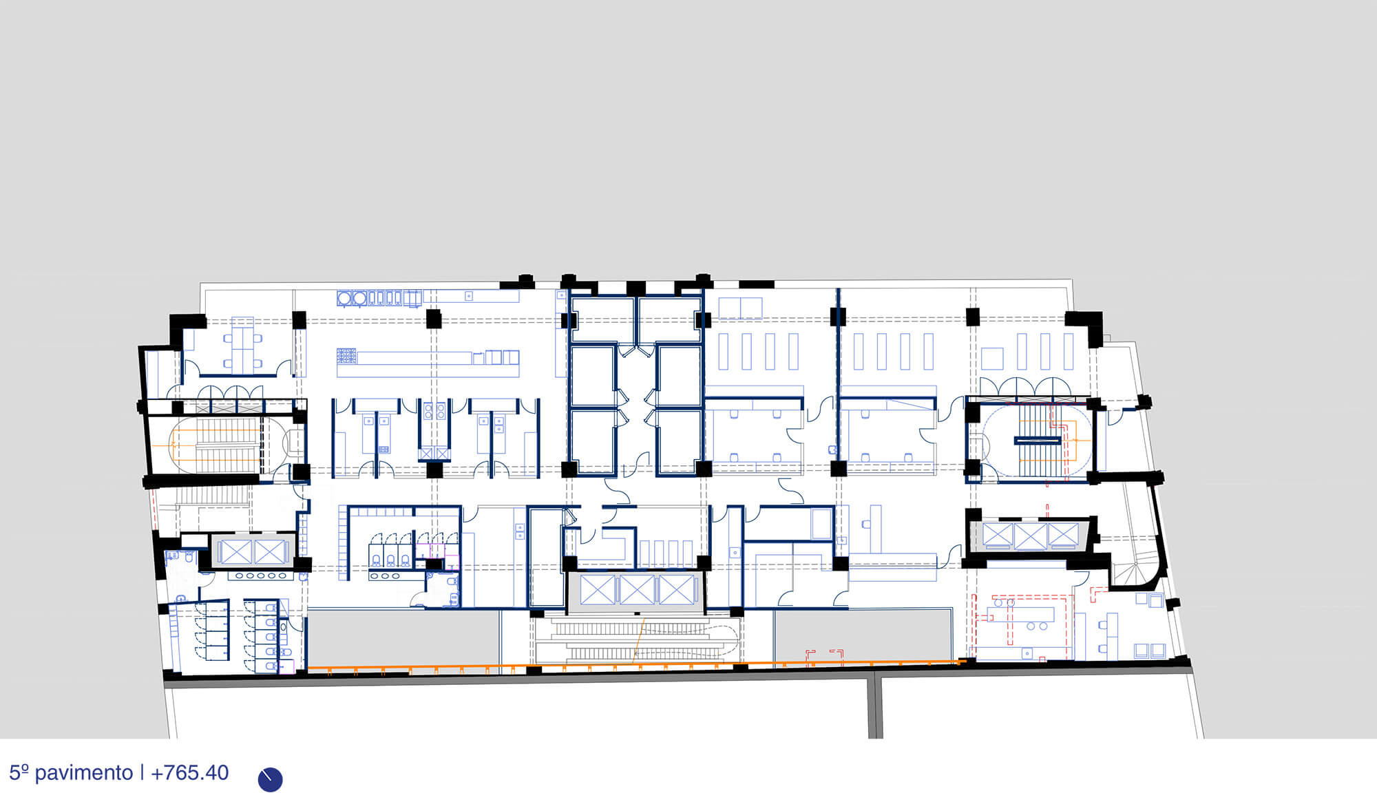
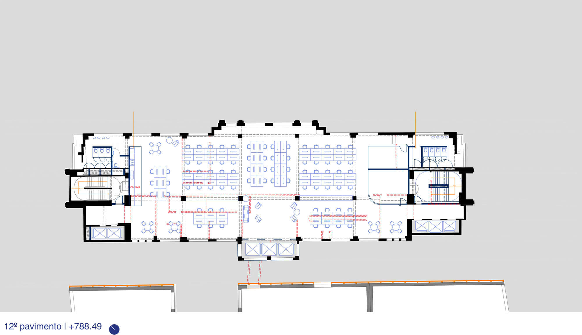
Organização Programática
O programa arquitetônico do SESC Galeria reflete-se na configuração volumétrica do Edifício João Brícola, considerando-se os usos públicos no bloco inferior e os espaços de trabalho institucionais no bloco superior, sem diferir da ocupação do edifício pelo antigo Mappin.

Em todos os casos, adota-se a premissa da flexibilidade funcional a partir da adoção de prumadas de infraestrutura nas extremidades do edifício, permitindo conexões entre ambientes, possibilidade de adaptações programáticas futuras ou flexibilidade de ocupação, como no caso do auditório com arquibancadas retráteis capazes de viabilizar diferentes arranjos.
Favorecidos pela circulação vertical mecânica e por uma atenta adequação das funções aos diferentes pé-direitos disponíveis, os programas públicos se apresentam como surpresas a cada pavimento, enfatizando a diversidade de atuação do SESC. Entre estes e o bloco mais convencional de escritórios, situa-se o espaço do café e do restaurante, um hiato entre volumes que se apropria dos terraços existentes e das generosas vistas para o entorno.

Por fim, ainda que o bloco de escritórios assuma uma ocupação mais convencional, consideramos oportuno franquear acesso público eventual e controlado por meio dos elevadores centrais a alguns ambientes do CPF, Editora e Administração, bem como ao último pavimento ocupado pelo Bem Viver, cujos programas de estar circundam um jardim interior e iluminado. Este espaço, com visão privilegiada para o entorno e para equipamentos técnicos do terraço, pode ter um papel pedagógico ao revelar ao público, ainda que de forma controlada, as preocupações ambientais e tecnológicas que o SESC costuma valorizar em seus edifícios.

Volumes, reflexos, sons e ventos
Nesta proposta, entendemos como viável preservar a volumetria do edifício e realizar o restauro completo de suas fachadas, mesmo com a implantação das diversas atividades previstas pelo SESC. Esses novos usos serão, inclusive, fundamentais para garantir a preservação contínua e a vitalidade futura desse patrimônio.

Tal abordagem também está alinhada às preocupações ambientais, priorizando a redução do consumo de energia pela climatização apenas dos espaços programáticos fechados, quando esta for imprescindível para sua adequada utilização, ação que é favorecida pelas circulações abertas para a nova fachada interior do edifício que se aproveitam da circulação de ar conquistadas pelos vazios obtidos pela supressão de lajes.

Da mesma forma que o ar quente sobe, a luz zenital penetra no edifício, agora favorecida por uma instalação artística posicionada junto às empenas do edifício vizinho voltadas ao norte: um plano reflexivo capaz de captar a luz de maneiras distintas ao longo do dia.

Essa superfície metálica, com diferentes gradações de polimento, recebe também inscrições informativas sobre os andares e suas cotas em relação ao nível do mar. Sua dupla camada favorece ainda a instalação de dispositivos acústicos e iluminação artificial, conferindo unidade material às novas intervenções em contraste com a edificação original e atuando, a partir das ruas do entorno, como plano de fundo para o edifício restaurado.